Luxury Living Luxury Living Luxury Living

About Us

Aadya Builders & Estates is dedicated to redefining luxury living with residences that embody elegance, sophistication, and modern design. Each villa is crafted as a perfect harmony of architecture, comfort, and nature, ensuring a lifestyle that is both exclusive and timeless.

Our approach combines cutting-edge technology, sustainable practices, and meticulous attention to detail, resulting in homes that are not only visually stunning but also enduring in quality. Every project is executed with precision and care, reflecting our commitment to excellence at every stage.

Clubhouse Facilities

  • GRAND BANQUET HALL FOR CELEBRATIONS & EVENTS
  • LUXURIOUS GUEST ROOMS FOR A COMFORTABLE STAY
  • MINI THEATRE FOR THE ULTIMATE MOVIE EXPERIENCE
  • PEACEFUL YOGA ROOM FOR MEDITATION & RELAXATION
  • FULLY EQUIPPED GYM ROOM FOR A HEALTHY LIFESTYLE
  • FUN-FILLED INDOOR GAMES FOR ALL AGE GROUPS
  • REFRESHING SWIMMING POOL FOR RELAXATION & LEISURE

Master Layout

Master Layout Plan

Development Features

  • Spacious Residences with Premium Finishes
  • World-Class Amenities and Facilities
  • Beautifully Landscaped Gardens and Parks
  • Smart Home Technology Integration
  • 24/7 Security and Concierge Services
  • Sustainable Design with Energy Efficient Systems
  • Convenient Access to Major Transportation Routes

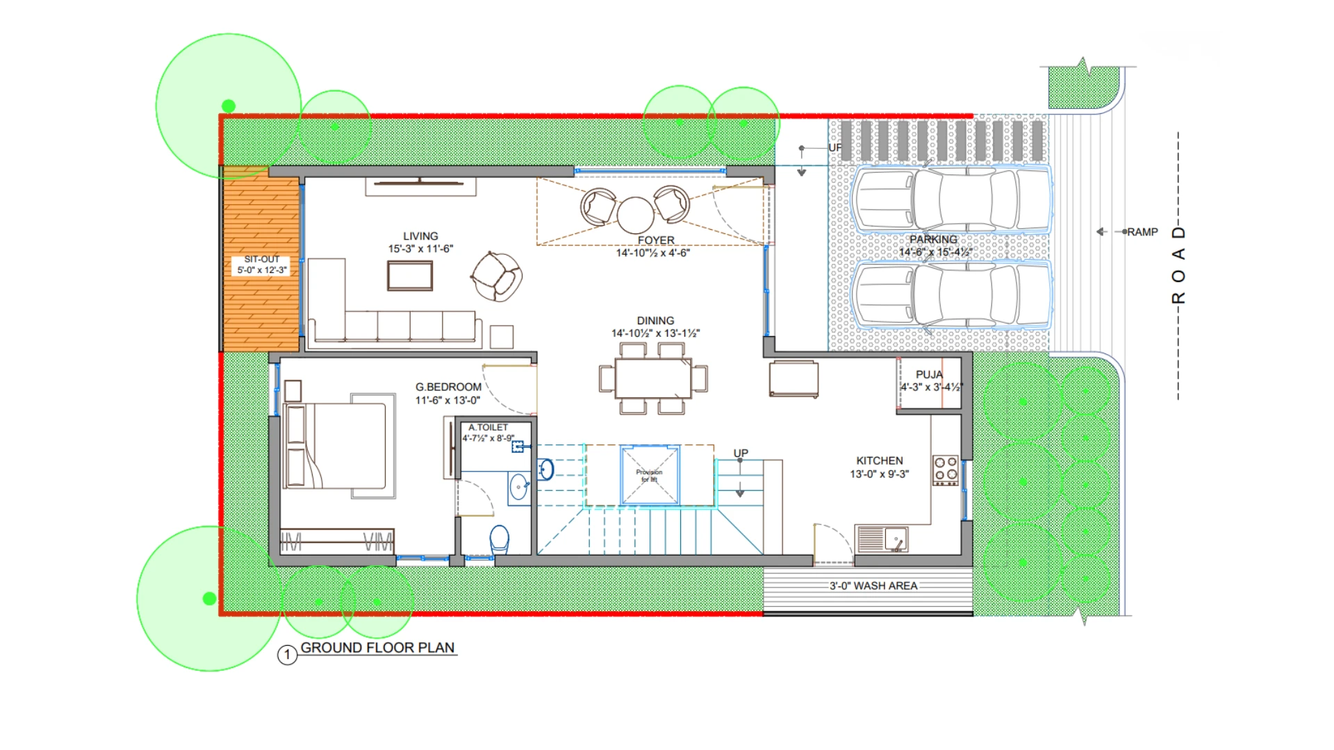
Floor Plans

Floor Plan

Location

Live Connected Living Areas

Connectivity
  • ORR Exist 3 Patancheruvu – 5Min
  • Isnapur 'X' Roads - 4Min
  • National Highway 65 - 2Min
  • Patancheru Bus Stop – 5Min
Education
  • Candidus International School-10Min
  • Maheswara Medical College - 1Min
  • IIT Kandi - 20Min
  • Gitam University - 15Min
Healthcare
  • Maheswara Medical Hospital-1Min
  • Max Care Hospital - 6Min
  • Kakatiya Hospital - 9Min
  • VCare Hospital - 9Min
Entertainment and Shopping
  • VMR Fashion Mall – 8Min
  • Meraj Complex – 17Min
  • Value Hyper Mart – 14Min
  • Reliance Smart Point – 19Min

Get in Touch

Aadya Builders & Estates

Building excellence. We specialize in residential, commercial, and industrial construction projects with a focus on quality and innovation.

Contact Us

Site Visit Enquiry

Please enter your name
Please enter a valid email address
Please enter a valid 10-digit phone number
×

Schedule a Site Visit